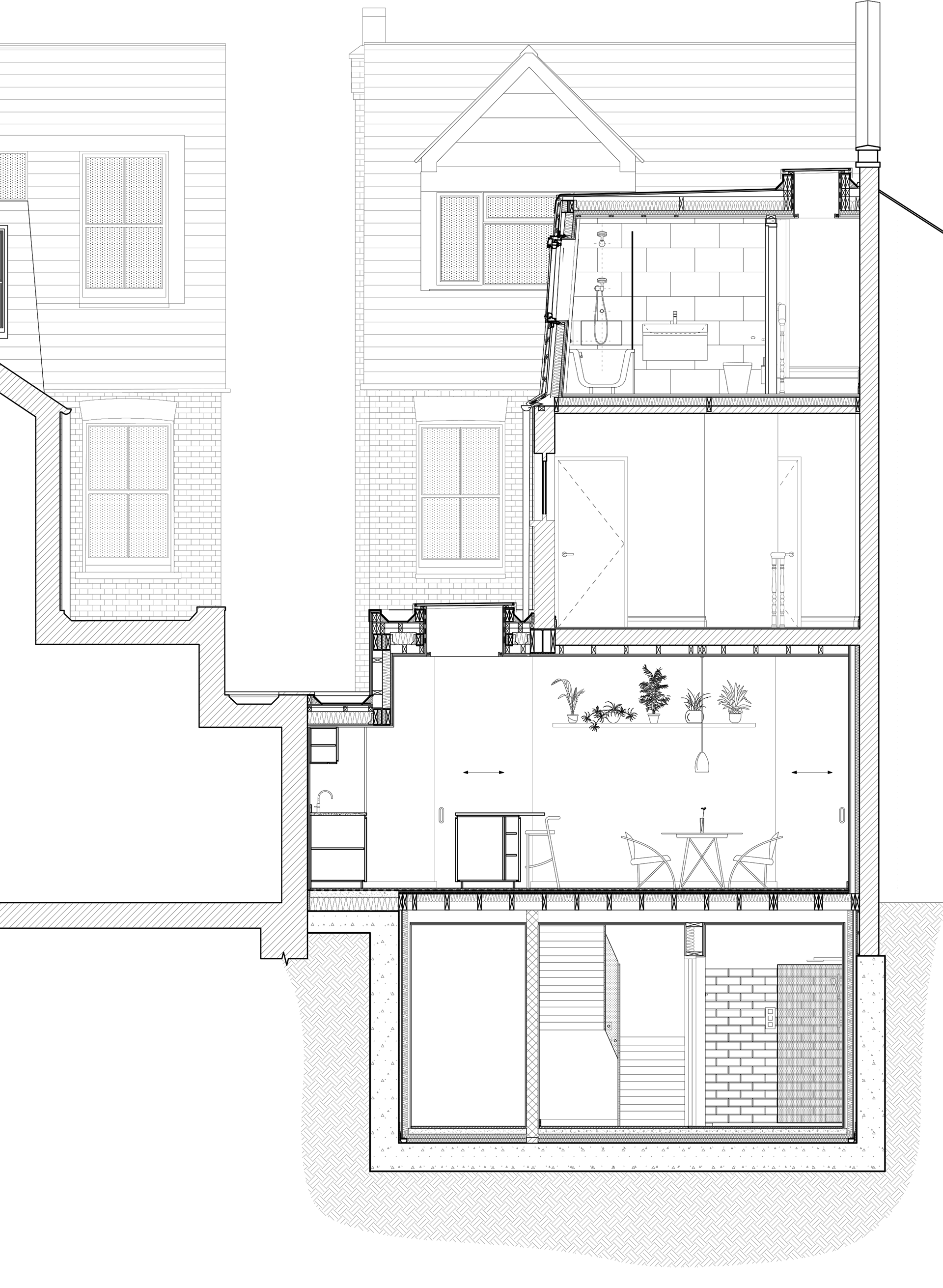
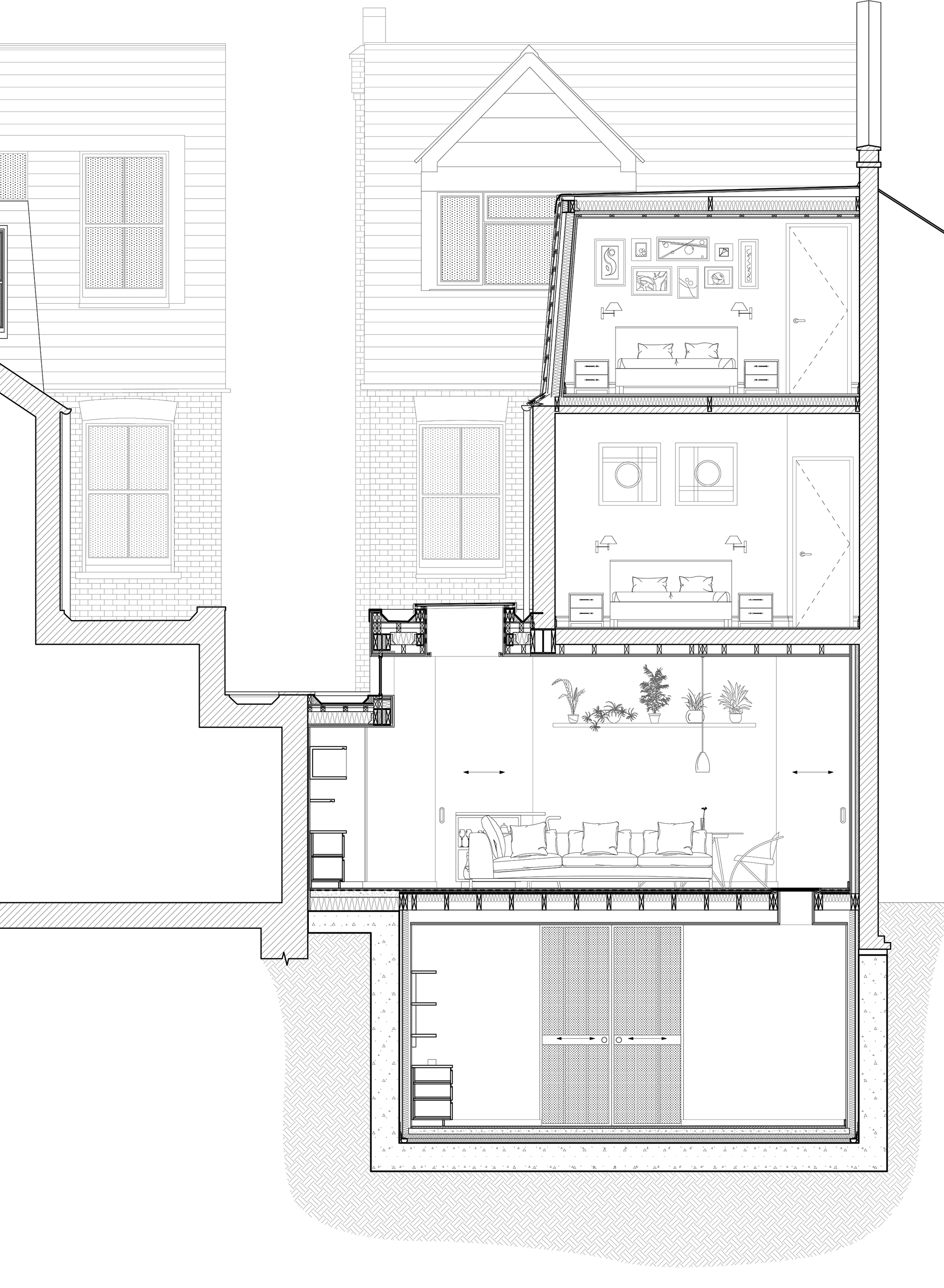
Sections through a Victorian semi-detached house with rear, basement and roof extensions Architectural design by Thomas de Cruz Architects & Designers Vectorworks